施工例・実績

新築外構工事H様邸

b-sales

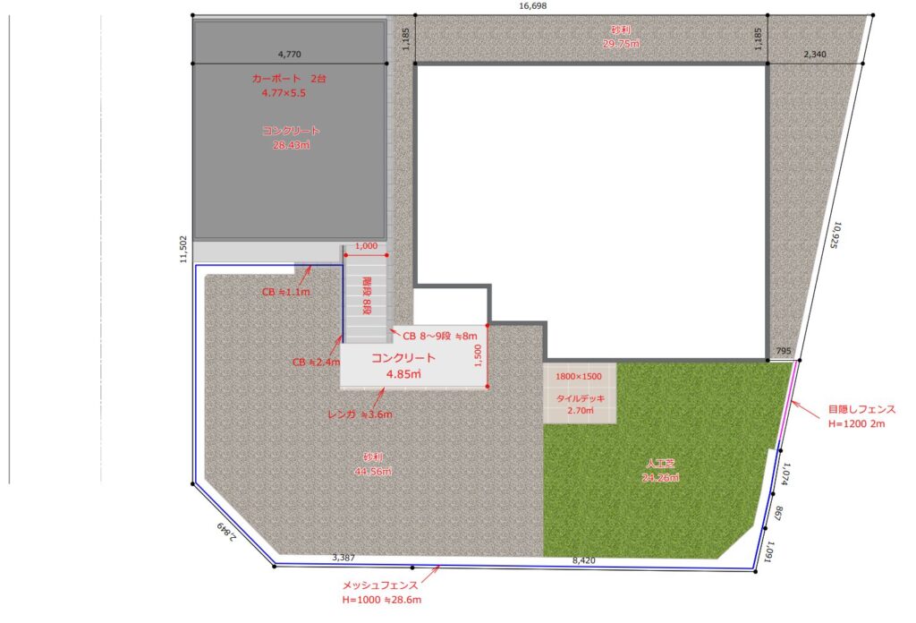
平面図、パース図

English Case

施工内容

  • ブロック積み(8段~9段)
  • コンクリート舗装
  • カーポート設置
    (LIXIL/SW900/2台用 47-55型)
  • 砂利敷き(+防草シート)
  • 人工芝
  • タイルデッキ

記事URLをコピーしました