施工例・実績

新築外構工事N様邸

b-sales

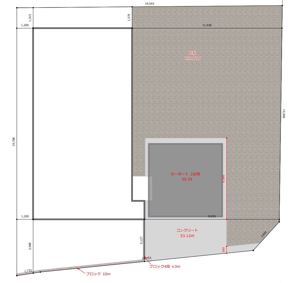
平面図、パース図

English Case

施工内容

  • ブロック積み(4段)
  • コンクリート舗装
  • カーポート設置
    (LIXIL/SW900/1台用 55-55型)
  • 砂利敷き(+防草シート)

記事URLをコピーしました