施工例・実績

新築外構工事K様邸

b-sales

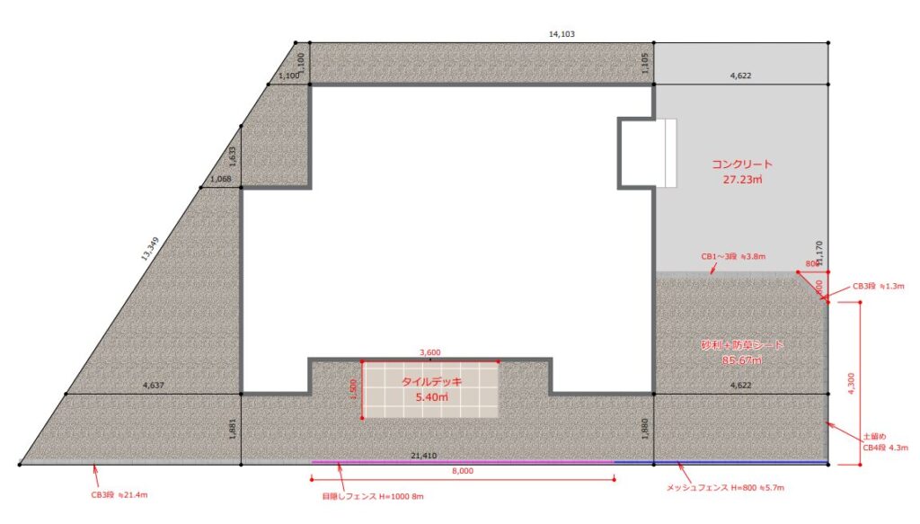
平面図、パース図

English Case

施工内容

  • ブロック積み(3段~4段)
  • コンクリート舗装
  • 砂利敷き(+防草シート)
  • タイルデッキ
  • メッシュフェンス
  • 目隠しフェンス

記事URLをコピーしました